Smyth Leslie & Co Limited

54 Slievebane Road, Irvinestwon, Enniskillen BT94 1DH

Agricultural Land (with FPP) For Sale

Guide price £320,000

Print additional images & map (disable to save ink)

Photo 1 of 54 Slievebane Road, Irvinestwon, Enniskillen

Telephone:

028 6632 0456

View Online:

www.smythleslie.com/1048746

Key Information

Address 54 Slievebane Road, Irvinestwon, Enniskillen
Price Guide price £320,000
Land type Agricultural Land (with FPP)
Planning Full Planning Permission
Status For sale

Features

  • Circa 38 acres including excellent building site
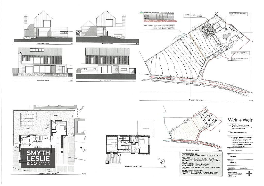
  • Full Planning Permission for Replacement Residence
  • Land bisected by public road (Slievebane Road)
  • Excellent road frontage
  • Good quality grazing lands
  • Attractive sized holding
  • Popular location only 3.5 miles from Irvinestown
  • Circa 2 miles from the Lack Road
  • Excellent Investment Opportunity and Potential

Additional Information

Circa 38 acres of land including derelict dwelling and yard with FPP for contemporary barn style residence, with wonderful countryside views, circa 3.5 miles from Irvinestown and circa 4.5 miles from Kesh.


This excellent parcel of land, comprising circa 38 acres, on both sides of the Slievebane Road, offers an ideal opportunity to prospective purchasers, to acquire an attractive sized holding in a popular area of the County.


Situated on the lands is an old dwelling with outbuildings and full planning permission for a substantial contemporary residence has been obtained.


Directions:


From Irvinestown drive out the Lack Road for approx. 1.5 miles. Turn left (see red phone box on RHS) onto the Keeran Road. Go down this road for approx 1 mile, take left onto Slievebane Road. Travel down the Slievebane Road for approx 1 mile. Land is on both sides of the road.


 


FULL DETAILS AND ARRANGEMENTS TO VIEW AVAILABLE FROM SMYTH LESLIE & CO


 


OFFICE TEL: 028 66320456

  • Smyth Leslie & Co Limited

    Smyth Leslie & Co Limited

    028 6632 0456

Photo Gallery

Photo 1 of 54 Slievebane Road, Irvinestwon, Enniskillen Photo 2 of 54 Slievebane Road, Irvinestwon, Enniskillen Photo 3 of 54 Slievebane Road, Irvinestwon, Enniskillen Photo 4 of 54 Slievebane Road, Irvinestwon, Enniskillen Photo 5 of 54 Slievebane Road, Irvinestwon, Enniskillen Photo 6 of 54 Slievebane Road, Irvinestwon, Enniskillen Photo 7 of 54 Slievebane Road, Irvinestwon, Enniskillen Photo 8 of 54 Slievebane Road, Irvinestwon, Enniskillen Photo 9 of 54 Slievebane Road, Irvinestwon, Enniskillen Photo 10 of 54 Slievebane Road, Irvinestwon, Enniskillen Photo 11 of 54 Slievebane Road, Irvinestwon, Enniskillen Photo 12 of 54 Slievebane Road, Irvinestwon, Enniskillen Photo 13 of 54 Slievebane Road, Irvinestwon, Enniskillen Photo 14 of 54 Slievebane Road, Irvinestwon, Enniskillen Photo 15 of 54 Slievebane Road, Irvinestwon, Enniskillen Photo 16 of 54 Slievebane Road, Irvinestwon, Enniskillen Photo 17 of 54 Slievebane Road, Irvinestwon, Enniskillen Photo 18 of 54 Slievebane Road, Irvinestwon, Enniskillen Photo 19 of 54 Slievebane Road, Irvinestwon, Enniskillen Photo 20 of 54 Slievebane Road, Irvinestwon, Enniskillen Photo 21 of 54 Slievebane Road, Irvinestwon, Enniskillen Photo 22 of 54 Slievebane Road, Irvinestwon, Enniskillen

Visit www.smythleslie.com for further details.