Smyth Leslie & Co Limited

Druminiskill Road, Enniskillen BT92 3AT

Building Plot (with FPP) For Sale

Sale Agreed £75,000

Print additional images & map (disable to save ink)

Photo 1 of Druminiskill Road, Enniskillen

Telephone:

028 6632 0456

View Online:

www.smythleslie.com/976836

Key Information

Address Druminiskill Road, Enniskillen
Price Last listed at Guide price £75,000
Land type Building Plot (with FPP)
Planning Full Planning Permission
Status Sale Agreed

Additional Information

Building Site Within The Wonderful Back Drop Of Fermanagh`s Breathtaking Countryside, set on 3 Acres & With FPP For An Architecturally Designed Home That Reflects Its Beautiful Setting.
·
FPP For A Significant Residence (LA10/2022/0551/F)

·
Set On 3 Acres Including Natural Woodland

·
Designed To Reflect Its Country Location With Beautiful Views

·
Views Towards Cuilcagh Mountain

·
Located A Short Distance From The A509 Derrylin Road

·
A Convenient Drive To Florencecourt & Bellanaleck

·
8 Miles To Enniskillen

·
A Perfect Opportunity Within Such A Perfect Country Location


Positioned a short distance from the main A509 Derrylin Road, a convenient drive to Florencecourt and the main Swalinbar Road, close to Bellanaleck village, 8 miles from Enniskillen, this unique building site has the perfect balance of wonderful countryside and the convenience of a central location.

Set on some 3 acres that includes natural woodland, the site offers full planning approval for an Architecturally designed residence, designed to reflect its unique surroundings, taking advantage of its views towards the Cuilcagh Mountain Range.




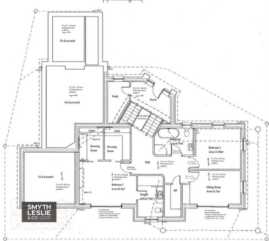
ACCOMMODATION COMPRISES

The internal Layout affords excellent open plan living and entertainment space as well as 4 individual bedrooms, the key room affords wonderful views.

Ground Floor:-

Entrance Porch, Study, Open Kitchen, Dining and Family Room, Sun Room, Living Room, Boot Room, Toilet, Bedroom, Snug.

Lower Ground Floor:

Landing, Principal Bedroom with Extensive Dressing Room \& Bathroom Ensuite, 2 Bedrooms, Bathroom

Notice
Please note we have not tested any apparatus, fixtures, fittings, or services. Interested parties must undertake their own investigation into the working order of these items. All measurements are approximate and photographs provided for guidance only.
  • Smyth Leslie & Co Limited

    Smyth Leslie & Co Limited

    028 6632 0456

Photo Gallery

Photo 1 of Druminiskill Road, Enniskillen Photo 2 of Druminiskill Road, Enniskillen Photo 3 of Druminiskill Road, Enniskillen Photo 4 of Druminiskill Road, Enniskillen Photo 5 of Druminiskill Road, Enniskillen Photo 6 of Druminiskill Road, Enniskillen Photo 7 of Druminiskill Road, Enniskillen Photo 8 of Druminiskill Road, Enniskillen Photo 9 of Druminiskill Road, Enniskillen

Visit www.smythleslie.com for further details.