Cookie Policy: This site uses cookies to store information on your computer. Read more
Key Information
| Address | 50m West Of, 40 Drumbristan Road, Doochrock, Kesh |
|---|---|
| Price | Price On Application |
| Land type | Building Site (with FPP) |
| Planning | Full Planning Permission |
| Status | For sale |
Features
- Planning Ref: LA/102024/0541/F
- Full Planning Permission For A Detached 4 Bedroom Residence
- Sympathetically Designed In Keeping With Its Countryside Location
- Tranquil Rural Setting, 4.5 Miles From Ederney Village
- Approximately 20 Miles From Both Enniskillen & Omagh
Additional Information
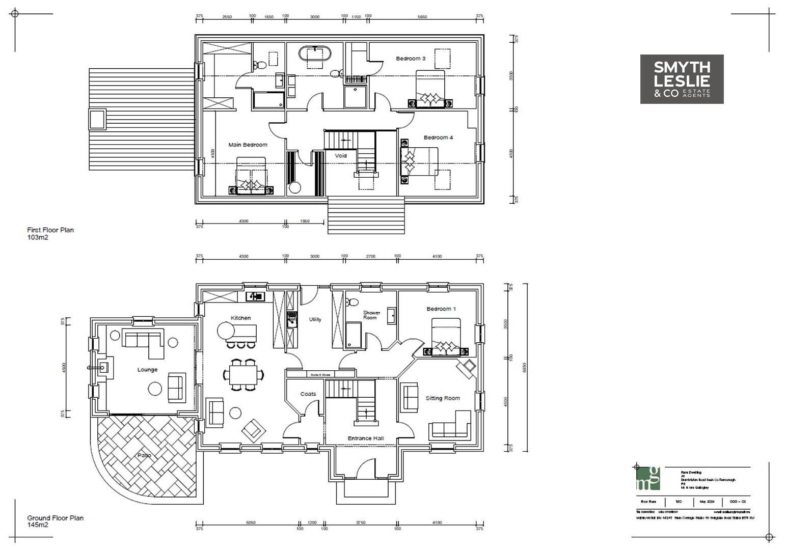
Set in tranquil countryside just 4.5 miles from the village of Ederney, this building site enjoys a highly accessible location approximately 20 miles north of Enniskillen and a similar distance from Omagh. Full planning permission has been granted for an eye-catching traditional style residence, thoughtfully designed to blend seamlessly with its rural surroundings. The proposed home offers a fabulous internal layout, combining character and charm with excellent flexibility to meet the demands of modern living.
An attractive opportunity within tranquillity countryside.
Call us now on: 028 6632 0456
Need some more information?
Fill in your details below and a member of our team will get back to you.