Cookie Policy: This site uses cookies to store information on your computer. Read more
Key Information
| Address | Clahernagh, Corraghy Road, Rosslea, Enniskillen |
|---|---|
| Price | Guide price £70,000 |
| Land type | Building Plot (with FPP) |
| Planning | Full Planning Permission |
| Status | For sale |
Features
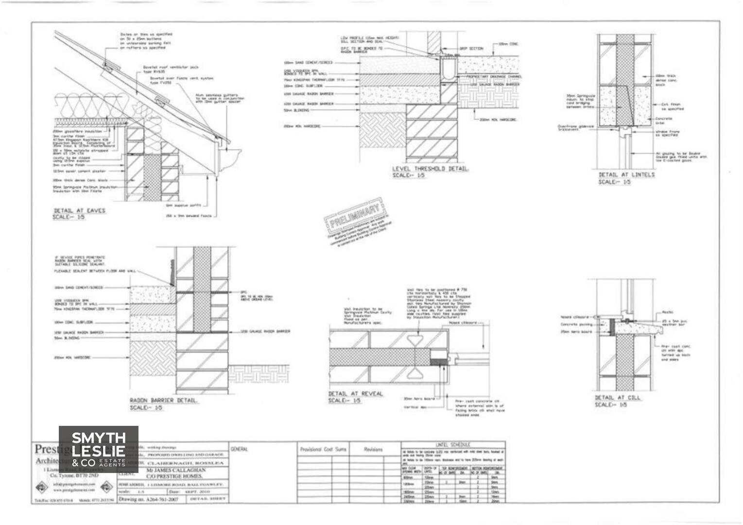
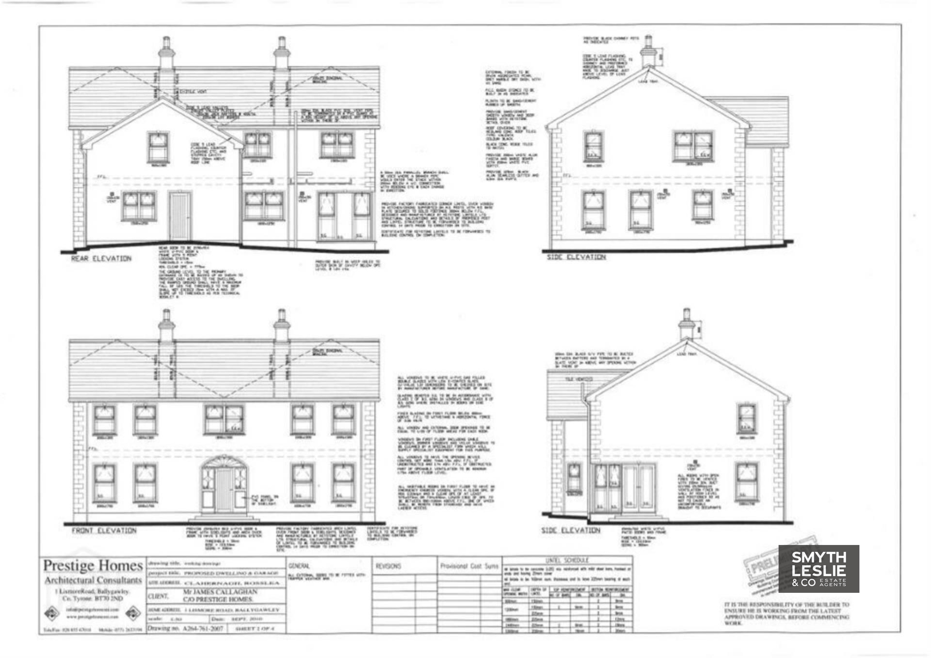
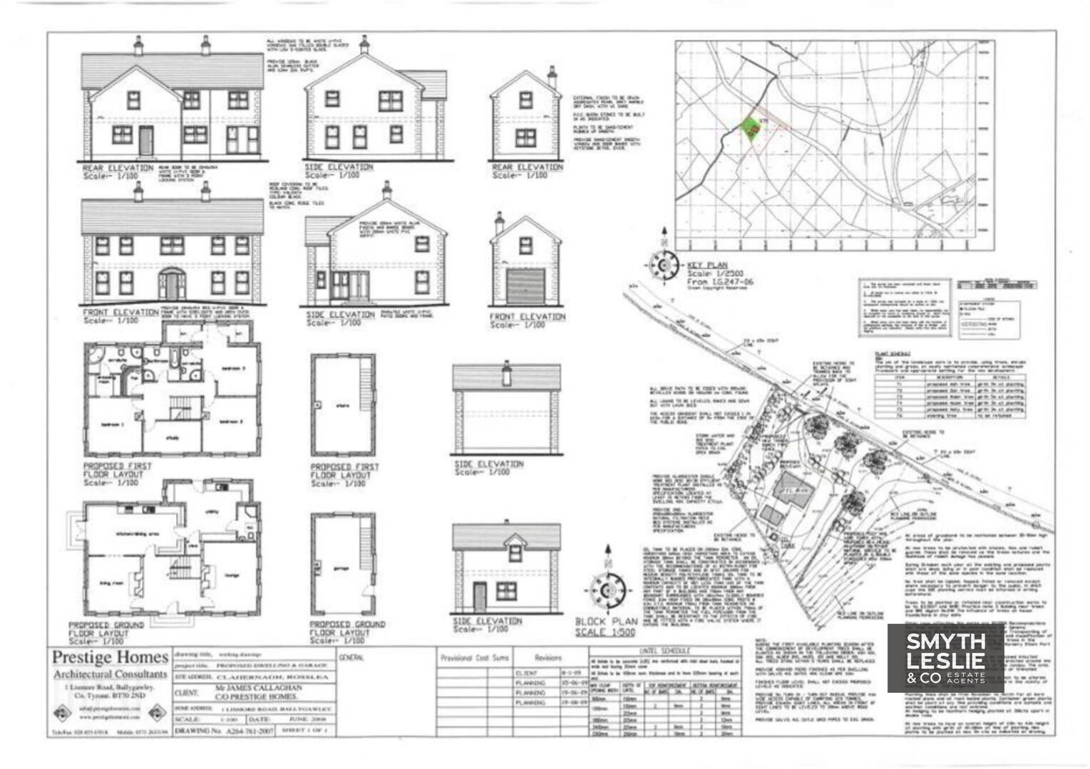
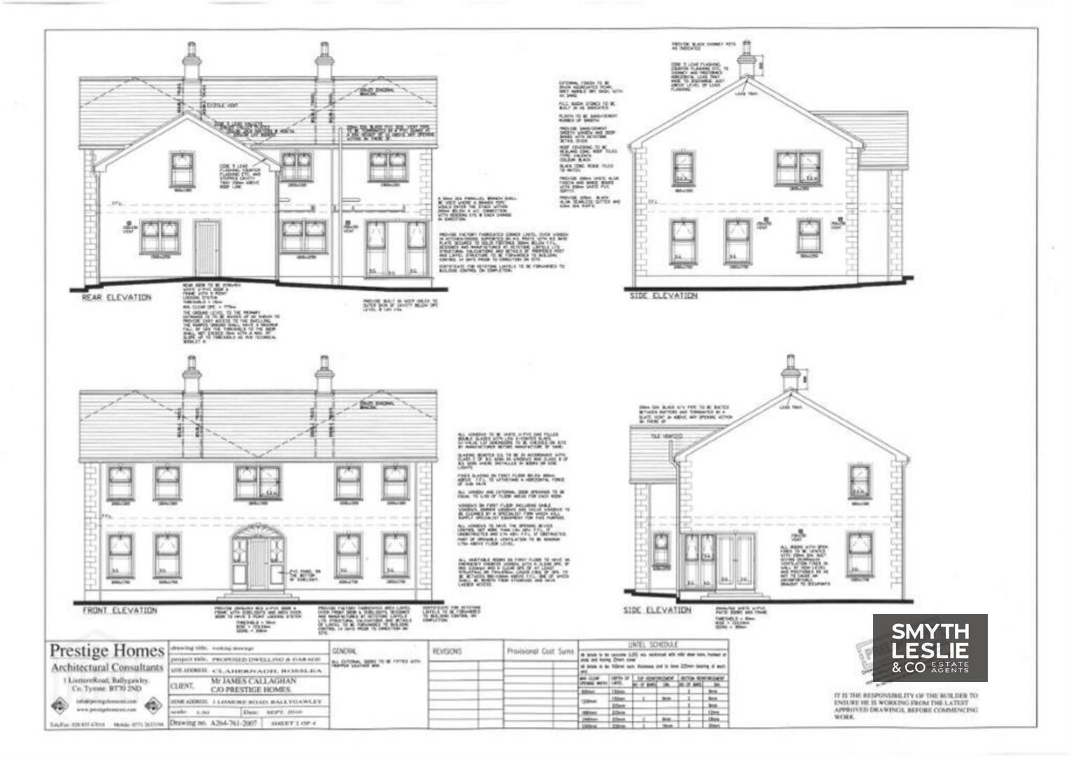
- Full Planning Permission for 2 Storey Residence With Garage
- Excellent Location On Outskirts Of Roslea
- Full Details, Drawings Etc. Available From Our Office
- Overlooking Corranny Lough
- Planning Ref: L/2009/0164/RM
Additional Information
Situated a short drive from Roslea Village, overlooking Corranny Lough, this eye catching building site offers Full Planning Permission for a detached 3/4 bedrooms residence, providing an excellent opportunity to construct a family home in an attractive location.
Notice
Please note we have not tested any apparatus, fixtures, fittings, or services. Interested parties must undertake their own investigation into the working order of these items. All measurements are approximate and photographs provided for guidance only.
Notice
Please note we have not tested any apparatus, fixtures, fittings, or services. Interested parties must undertake their own investigation into the working order of these items. All measurements are approximate and photographs provided for guidance only.
Call us now on: 028 6632 0456
Need some more information?
Fill in your details below and a member of our team will get back to you.